Appartement neuf Lespinasse
Lespinasse
A partir de 190 900 €
REF: LE28G
Nouveau!
Lespinasse
N/C
2nd Trim. 2028
40
Programme immobilier neuf à Lespinasse
Présentation du programme
Dans un marché immobilier toulousain en constante évolution, le nord de la métropole tire son épingle du jeu grâce à une demande locative forte et un cadre de vie qualitatif. Ce programme immobilier neuf à Lespinasse représente une opportunité patrimoniale de premier ordre, que ce soit pour un premier achat ou pour un investissement sécurisé.
Focus sur la commune de Lespinasse (31150) Lespinasse est l'une des communes les plus prisées du nord toulousain. Sa force réside dans son équilibre :
Emploi : Située dans le prolongement direct du bassin d'emploi de Toulouse Nord et de la zone aéroportuaire.
Équipements : La ville dispose de structures scolaires (école maternelle et primaire), de complexes sportifs et d'une vie associative riche.
Patrimoine naturel : La proximité du Canal de Garonne offre un poumon vert essentiel à la valorisation des biens immobiliers du secteur.
La Résidence : Une conception axée sur l'usage et la durabilité Ce programme immobilier neuf à Lespinasse propose une typologie de logements variée, allant de l'appartement de type 2 au grand appartement familial. La conception a été guidée par trois piliers : la sécurité, le confort et l'esthétique.
Prestations techniques et confort de vie :
Sécurité renforcée : Accès à la résidence par badge Vigik, portail automatique pour le parking souterrain et caméras de surveillance.
Matériaux nobles : Carrelage grand format dans les pièces de vie, parquet dans les chambres, et salles de bains équipées avec des matériaux de haute qualité.
Économie d'énergie : Utilisation de systèmes de chauffage performants (pompes à chaleur ou chaudières haute performance) et double vitrage isolant.
L'aménagement des espaces communs Le projet accorde une place prépondérante au végétal. Les espaces communs sont paysagers avec des essences locales, favorisant la biodiversité et offrant un écran de verdure naturel entre les bâtiments. Des cheminements doux permettent de circuler au sein de la résidence en toute sécurité.
Conclusion : Un investissement pérenne au nord de Toulouse En choisissant ce programme immobilier neuf à Lespinasse, vous investissez dans un secteur à fort potentiel de valorisation. La rareté du foncier sur la commune, couplée à l'exigence de construction de ce projet, en fait un actif immobilier de choix. Que vous recherchiez un cocon pour votre famille ou un placement rentable, cette adresse répond aux critères les plus exigeants du marché actuel.
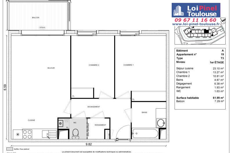
Prix en fonction des typologies
| Type de bien | Pièce | Surface | Prix | |
![]() |
Appartement | 2 pièces | De 40 m² à 44 m² | De 190 900 € à 203 900 € |
![]() |
Appartement | 3 pièces | De 58 m² à 62 m² | De 242 900 € à 254 900 € |
Vous souhaitez investir ?
Simulateur Loi Pinel
Vous achetez en résidence principale ?
Simulateur Prêt Taux Zéro
LOI PINEL TOULOUSE























