Appartement neuf Toulouse Cartoucherie
Toulouse / Cartoucherie
A partir de 220 000 €
REF: CA28M
Ville
Toulouse
Toulouse
Quartier
Cartoucherie
Cartoucherie
Livraison
4ème Trim. 2028
4ème Trim. 2028
Nb d'appartements :
Programme immobilier neuf à Toulouse Cartoucherie
Présentation du programme
LANCEMENT COMMERCIAL EN MARS- SOYEZ LE SPREMIERS INFOMES !
Proposés du 2 au 4 pièces, les logements allient praticité et confort : espaces bien agencés, luminosité naturelle, appartements traversants et, pour la plupart, double orientation.Chaque appartement dispose d’un balcon, d’une terrasse ou d’un jardin, parfait pour profiter de belles vues dégagées sur la ville, les Pyrénées, la Garonne ou encore les toits de Toulouse. De généreuses surfaces et des prestations haut de gamme assurent un quotidien agréable et pérenne. Au cœur de la résidence, un îlot paysager crée un véritable havre de verdure et de convivialité. Une allée piétonne, jalonnée d’espaces de repos, traverse l’ensemble.
Stationnements, locaux vélos pratiques et accès sécurisés renforcent le confort des résidents. Située dans l’écoquartier animé de la Cartoucherie, la résidence s’inscrit dans un environnement complet avec commerces, services, établissements scolaires, infrastructures sportives, cinéma et théâtre à proximité immédiate.
Les Jardins du Barry et les berges de la Garonne, accessibles à pied, offrent un décor naturel privilégié. Grâce à l’arrêt de tram T1 « Zénith » situé au pied de l’immeuble et aux lignes de bus 31 et 45, il est facile de rejoindre le centre-ville, l’aéroport, l’hôpital Purpan ou encore le Zénith en quelques minutes.
Prix en fonction des typologies
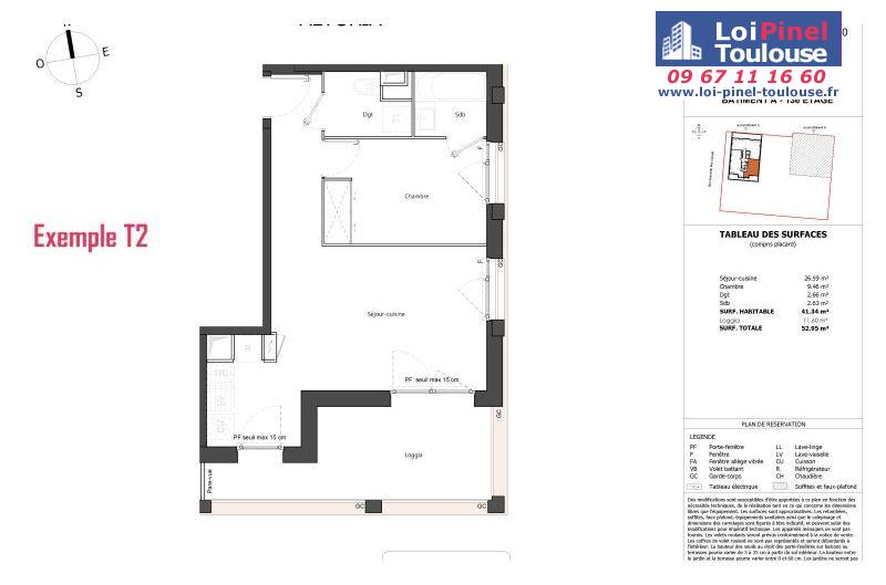
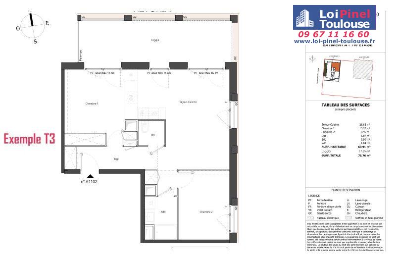
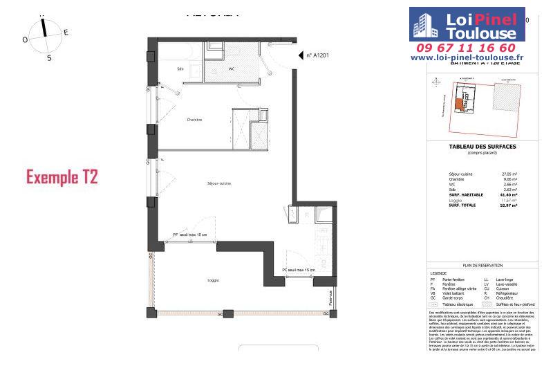
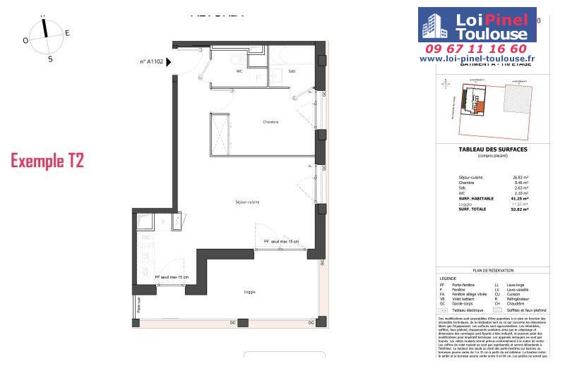
| Type de bien | Pièce | Surface | Prix | |
![]() |
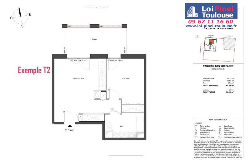
Appartement | 2 pièces | De 41 m² à 45 m² | A partir de 220 000 € |
![]() |
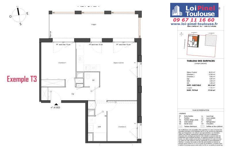
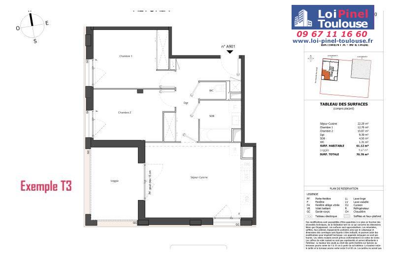
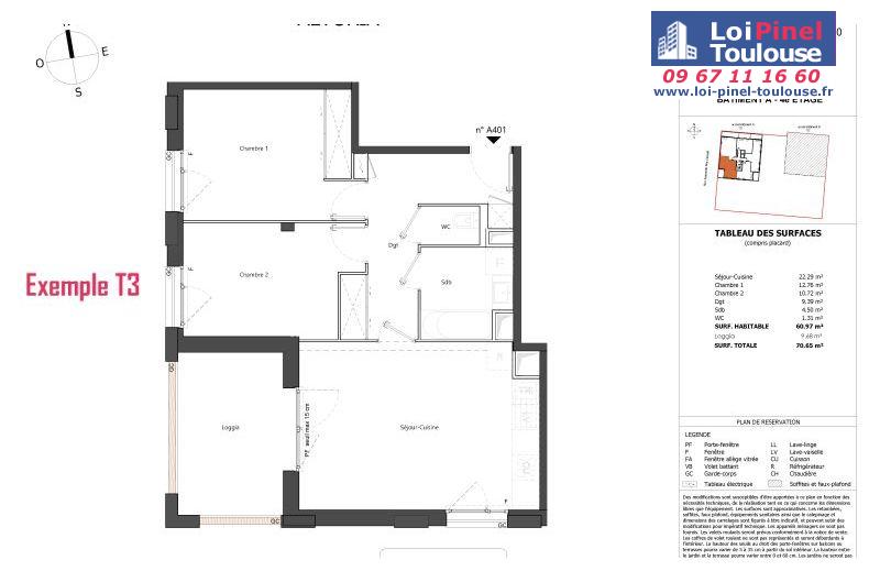
Appartement | 3 pièces | De 59 m² à 65 m² | A partir de 289 000 € |
![]() |
Appartement | 4 pièces | De 81 m² à 83 m² | A partir de 390 000 € |
Vous souhaitez investir ?
Simulateur Loi Pinel
Vous achetez en résidence principale ?
Simulateur Prêt Taux Zéro
LOI PINEL TOULOUSE



































































