Appartement neuf Toulouse Empalot
Toulouse / Empalot
A partir de 221 900 €
REF: EM28G
Nouveau!TVA réduite
Toulouse
Empalot
2nd Trim. 2028
74
Programme immobilier neuf à Toulouse Empalot
Présentation du programme
Programme immobilier neuf Empalot : un cadre de vie moderne au cœur de Toulouse
Au sud de Toulouse, le quartier Empalot se transforme progressivement pour devenir l’un des secteurs résidentiels les plus attractifs de la métropole. Au cœur de cette évolution urbaine, ce programme immobilier neuf Empalot propose une nouvelle façon d’habiter la ville, alliant modernité, confort et proximité avec la nature.
Idéalement situé à quelques minutes du centre-ville, ce projet immobilier offre une opportunité rare de vivre dans un quartier dynamique tout en profitant d’un environnement apaisé.
Toulouse, une métropole dynamique et attractive
Toulouse est aujourd’hui l’une des villes françaises les plus dynamiques. Capitale européenne de l’aéronautique et du spatial, elle accueille de nombreuses entreprises internationales et un tissu économique particulièrement solide.
La ville attire chaque année de nouveaux habitants séduits par son dynamisme, son patrimoine et sa qualité de vie. Sa population étudiante importante, son offre culturelle riche et son climat agréable en font l’une des métropoles les plus attractives de France.
Dans ce contexte, investir dans un programme immobilier neuf Empalot constitue un choix pertinent pour profiter du potentiel immobilier de la Ville Rose.
Empalot, un quartier connecté et accessible
Situé au sud du centre historique, Empalot bénéficie d’une position stratégique au sein de la métropole toulousaine. Le quartier est parfaitement desservi par les transports, permettant de rejoindre rapidement les principaux quartiers de la ville.
La station de métro de la ligne B permet d’accéder au centre-ville en quelques minutes seulement. Les lignes de bus complètent l’offre de mobilité et facilitent les déplacements vers les zones d’activité et les campus universitaires.
Les grands axes routiers sont également proches, ce qui permet de rejoindre rapidement les principaux pôles économiques de la région.
Grâce à ces atouts, ce programme immobilier neuf Empalot offre un emplacement idéal pour les actifs, les étudiants et les familles.
Une vie de quartier agréable et pratique
Empalot propose un cadre de vie équilibré où tout est accessible facilement. Les commerces de proximité, les services et les équipements publics permettent de répondre aux besoins du quotidien sans avoir à s’éloigner du quartier.
On y trouve des écoles, des établissements scolaires, des infrastructures sportives ainsi que des espaces culturels. Les marchés et commerces participent également à la convivialité et à l’animation du quartier.
La proximité de l’Île du Ramier constitue également un véritable atout. Ce vaste espace naturel en bord de Garonne offre de nombreuses possibilités de promenades, de sport et de détente.
Le futur parc Garonne, en cours d’aménagement, renforcera encore l’attractivité de ce secteur en proposant un grand espace vert métropolitain.
Une résidence contemporaine et paysagère
Ce programme immobilier neuf Empalot se compose de deux bâtiments à l’architecture moderne et élégante. La conception du projet met l’accent sur la qualité des espaces de vie et l’intégration du végétal.
La résidence accueille une diversité d’appartements allant du T2 au T5, afin de répondre aux besoins de différents profils d’acheteurs : jeunes actifs, familles ou investisseurs.
Les logements ont été conçus pour offrir des espaces lumineux et fonctionnels. Les pièces de vie sont ouvertes et optimisées afin de favoriser la circulation de la lumière naturelle.
Chaque appartement dispose d’un espace extérieur privatif, sous forme de balcon, loggia ou terrasse. Ces prolongements extérieurs permettent de profiter pleinement du cadre de vie et d’apporter une véritable continuité entre intérieur et extérieur.
Au centre de la résidence, un cœur d’îlot paysager crée un espace convivial et végétalisé, favorisant la détente et les échanges entre habitants.
Des logements confortables et performants
Les appartements de ce programme immobilier neuf Empalot intègrent des prestations modernes répondant aux attentes actuelles en matière de confort et d’efficacité énergétique.
Les logements sont équipés de menuiseries performantes avec double vitrage, de volets roulants et de matériaux de qualité. Les cuisines sont aménagées et les salles de bains disposent d’équipements contemporains.
Le chauffage est raccordé au réseau de chaleur urbain, ce qui permet de bénéficier d’une solution énergétique performante et durable.
La résidence propose également des stationnements privatifs ainsi qu’un local vélos sécurisé afin de faciliter les mobilités douces.
Un investissement immobilier prometteur
Grâce à son emplacement, ses prestations et son environnement en plein développement, ce programme immobilier neuf Empalot représente une opportunité intéressante pour investir dans l’immobilier neuf à Toulouse.
La forte demande locative dans la métropole toulousaine, notamment liée à la présence d’étudiants et de jeunes actifs, garantit un marché immobilier dynamique.
Entre qualité de vie, accessibilité et potentiel de valorisation, ce projet immobilier s’inscrit pleinement dans la transformation d’Empalot et dans l’avenir de Toulouse.
Prix en fonction des typologies
| Type de bien | Pièce | Surface | Prix | |
![]() |
Appartement | 2 pièces | De 39 m² à 43 m² | De 221 900 € à 227 900 € |
![]() |
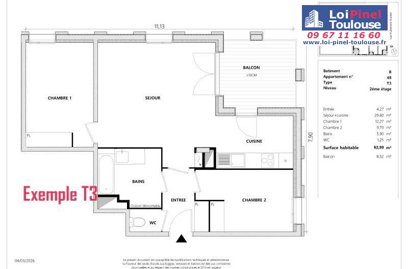
Appartement | 3 pièces | De 62 m² à 64 m² | De 262 900 € à 266 900 € |
![]() |
Appartement | 4 pièces | De 96 m² à 96 m² | De 236 900 € à 256 900 € |
Vous souhaitez investir ?
Simulateur Loi Pinel
Vous achetez en résidence principale ?
Simulateur Prêt Taux Zéro
LOI PINEL TOULOUSE











































































