Appartement neuf Toulouse Saint Simon
Toulouse / Saint Simon
A partir de 231 900 €
REF: TO28G-4
Nouveau!
Toulouse
Saint Simon
4ème Trim. 2028
29
Programme immobilier neuf à Toulouse Saint Simon
Présentation du programme
Fort de son caractère résidentiel et tranquille, le quartier route de Seysses propose à ses habitants un cadre de vie agréable au sud de la ville rose. Sa proximité avec le parc de Gironis et ses équipements (lac, parc, stades, terrains de tennis, gymnase) en fait un lieu de résidence privilégié, offrant de multiples activités pour toute la famille. Le quartier est bien desservi par les transports en commun, avec la ligne de bus Linéo L4 qui relie les 2 lignes du métro toulousain (station Basso Cambo de la ligne A et Empalot de la ligne B), permettant de rejoindre le coeur de Toulouse en moins de 20 minutes. Avec les autoroutes A64 et A620 à moins de 5 minutes et la rocade « Arc-en-Ciel », on accède rapidement à toutes les zones économiques de la métropole toulousaine. Les habitants du quartier bénéficient du dynamisme du pôle scientifique et technologique Oncopole, de la zone industrielle de Thibaud, ainsi que des zones commerciales de Portet-sur- Garonne et Roques-sur-Garonne. La résidence « Le 220 » se situe à proximité d’un espace boisé classé et du coeur commerçant où se côtoient tous les services et commerces du quotidien. La résidence « Le 220 » se compose d’un bâtiment entouré de beaux jardins boisés, favorisant la convivialité entre les habitants.
Prix en fonction des typologies
| Type de bien | Pièce | Surface | Prix | |
![]() |
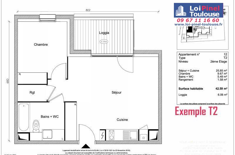
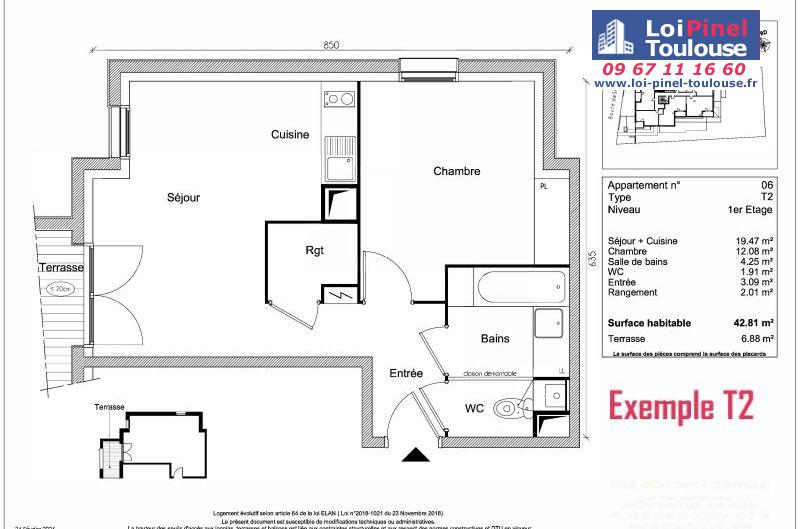
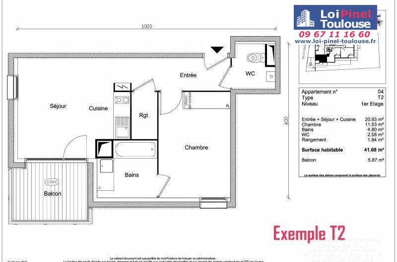
Appartement | 2 pièces | De 41 m² à 43 m² | De 231 900 € à 238 900 € |
![]() |
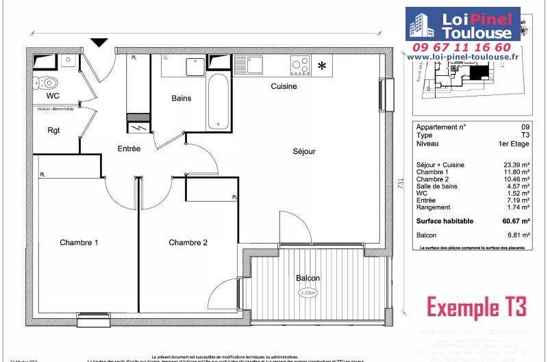
Appartement | 3 pièces | De 61 m² à 61 m² | De 274 900 € à 282 900 € |
![]() |
Appartement | 4 pièces | De 77 m² à 77 m² | De 327 900 € à 327 900 € |
Vous souhaitez investir ?
Simulateur Loi Pinel
Vous achetez en résidence principale ?
Simulateur Prêt Taux Zéro
LOI PINEL TOULOUSE




















